Pradalunga - Quadrilocale - 210.000 €
AMPIO APPARTAMENTO IN VILLA BIFAMILIARE, LIBERO SU 4 LATI CON VISTA PANORAMICA E SOTTOTETTO
A Pradalunga, in posizione tranquilla ma comoda a tutti i principali servizi del centro, proponiamo appartamento inserito in villa bifamiliare che garantisce privacy e indipendenza, senza spese condominiali e con ingresso indipendente.
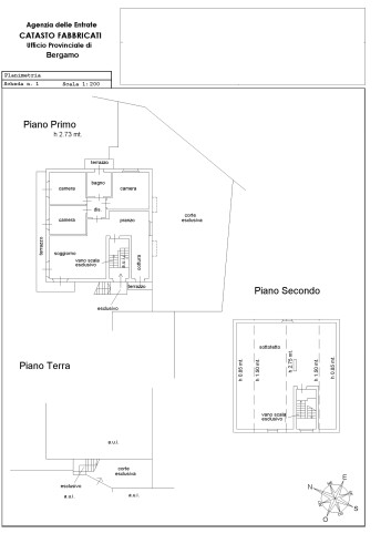
La soluzione occupa l’intero ultimo piano ed è libera su quattro lati, regalando una piacevole sensazione di apertura e una splendida vista panoramica. Gli ambienti sono ampi e ben distribuiti: la cucina è semi-abitabile, mentre il soggiorno, particolarmente spazioso, rappresenta il cuore della casa, ideale per vivere e accogliere. La zona notte è composta da tre camere di generose dimensioni e un bagno.
Sovrastante l’abitazione si sviluppa un grande sottotetto, facilmente accessibile e perfetto come locale hobby, spazio di sfogo o ambiente versatile da adattare alle proprie esigenze.
Completano la proprietà un comodo box doppio in larghezza e un piccolo posto auto inclusi nel prezzo.
Una soluzione ideale per chi cerca ampi spazi, indipendenza e tranquillità, senza rinunciare alla comodità del centro. Per maggiori informazioni o per fissare una visita, siamo a disposizione.









































