Casnigo - Quadrilocale - 179.000 €
AMPIO QUADRILOCALE CON TERRAZZO E DOPPI SERVIZI A CASNIGO
Nel cuore di Casnigo, in una zona tranquilla e ben servita, proponiamo un elegante appartamento quadrilocale, edificato nel 2006 e perfettamente adatto a chi desidera vivere con comodità e stile.
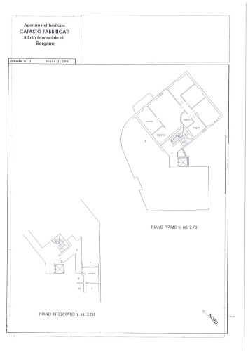
Entrando nell’appartamento si percepisce subito la sapiente divisione tra le aree giorno e notte: la zona giorno, ampia e accogliente, comprende una cucina separata e abitabile affiancata da un grande soggiorno, entrambi con uscita sul terrazzo, perfetto per momenti di relax all’aperto. Un disimpegno funzionale conduce quindi alla zona notte, che ospita tre comode camere da letto e due bagni, offrendo privacy e tranquillità.
Completa la proprietà un ampio box auto e una cantina, garanzia di praticità e spazio aggiuntivo.
Il contesto di costruzione recente assicura efficienza e rifiniture attuali, mentre la posizione garantisce vicinanza ai servizi senza rinunciare alla pace e alla riservatezza.
Un’abitazione ideale per chi cerca equilibrio tra eleganza, spazio e comodità in un ambiente familiare. Per maggiori informazioni o per fissare una visita, non esitare a contattarci.







































