Albino - Casa Indipendente - 109.000 €
GRANDE CASA CON GIARDINO AD ALBINO ZONA BONDO
Nel cuore verde e tranquillo di Bondo Petello, ad Albino, si trova questa grande casa indipendente che unisce privacy, spazi generosi e un contesto riservato ma vicino ai servizi principali.
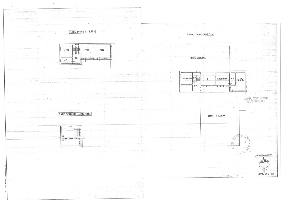
L’immobile offre ampi spazi distribuiti su due livelli, con la possibilità di realizzare al piano terra una grande zona giorno con soggiorno e cucina abitabile affacciati sull’esterno, oltre a uno studio o una camera per gli ospiti e un bagno di servizio. Il piano superiore si presta invece a ospitare tre camere da letto con bagno padronale, garantendo comfort e funzionalità alla zona notte.
Il sottotetto, reso sicuro dalle travi recentemente rifatte, rappresenta uno spazio ulteriore da valorizzare secondo le proprie esigenze, che si tratti di una mansarda abitabile, di un locale hobby o di un’area di servizio.
All’esterno la proprietà dispone di una corte esclusiva e di un giardino privato, spazi ideali per vivere momenti all’aperto e con la possibilità di ricavare box/p.auto coperti.
Un’opportunità perfetta per chi cerca indipendenza, metrature generose e la libertà di progettare la propria casa in un contesto riservato ma a breve distanza dai servizi di Albino.




































